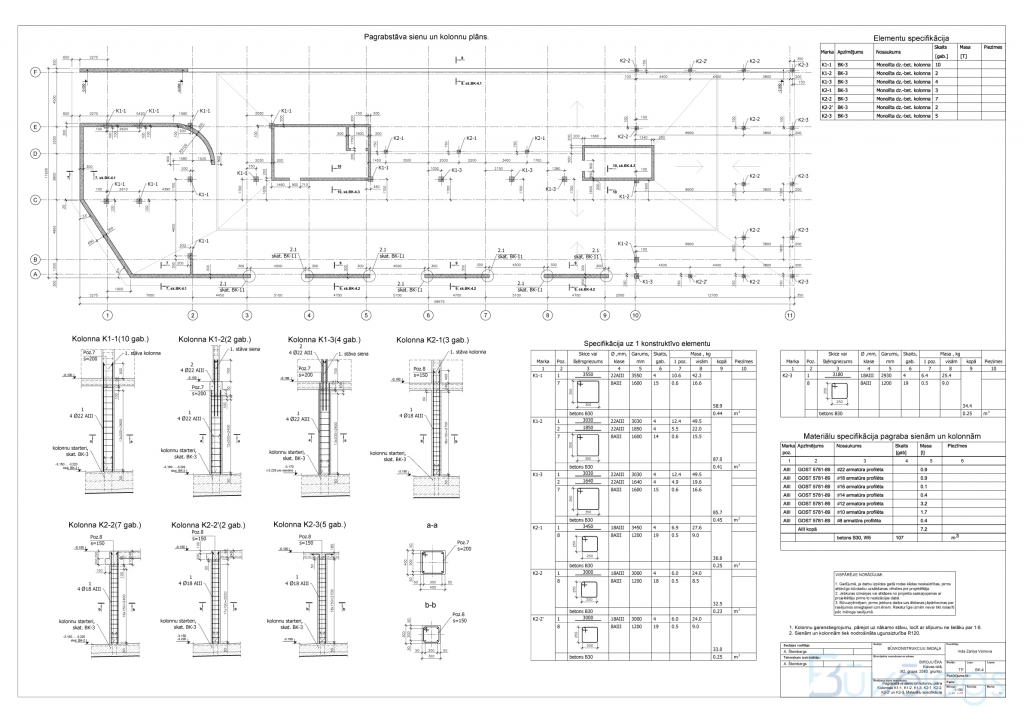
Par projektu

Ēka ir 5-stāvu ar pazemes stāvu Kaivas ielā

Monolītas dzelzsbetona konstrukcijas ar pašnesošo mūra sienu aizpildījumu.

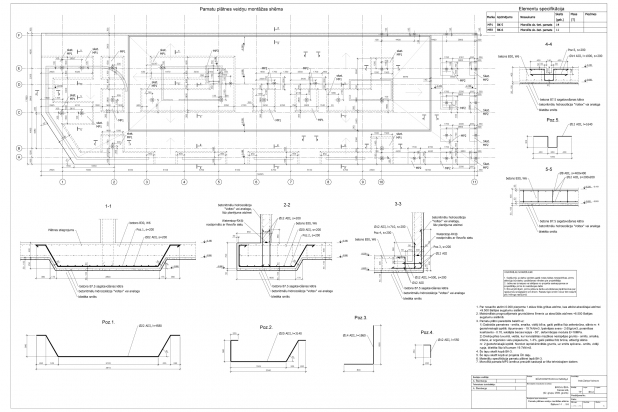
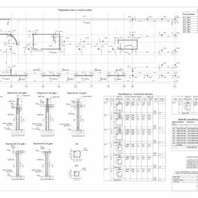
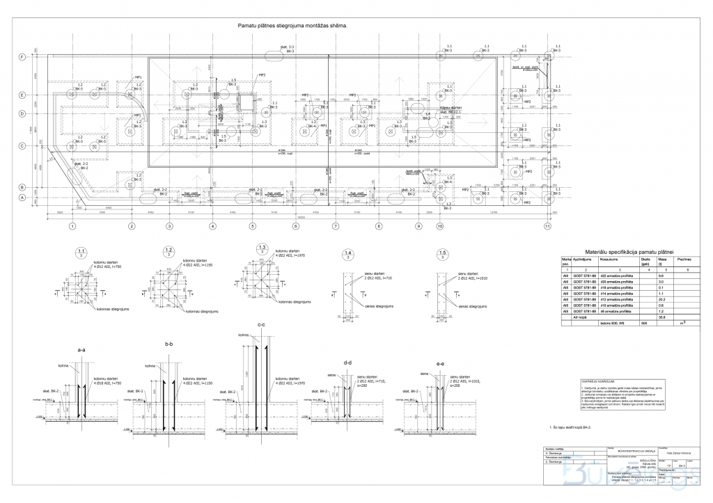
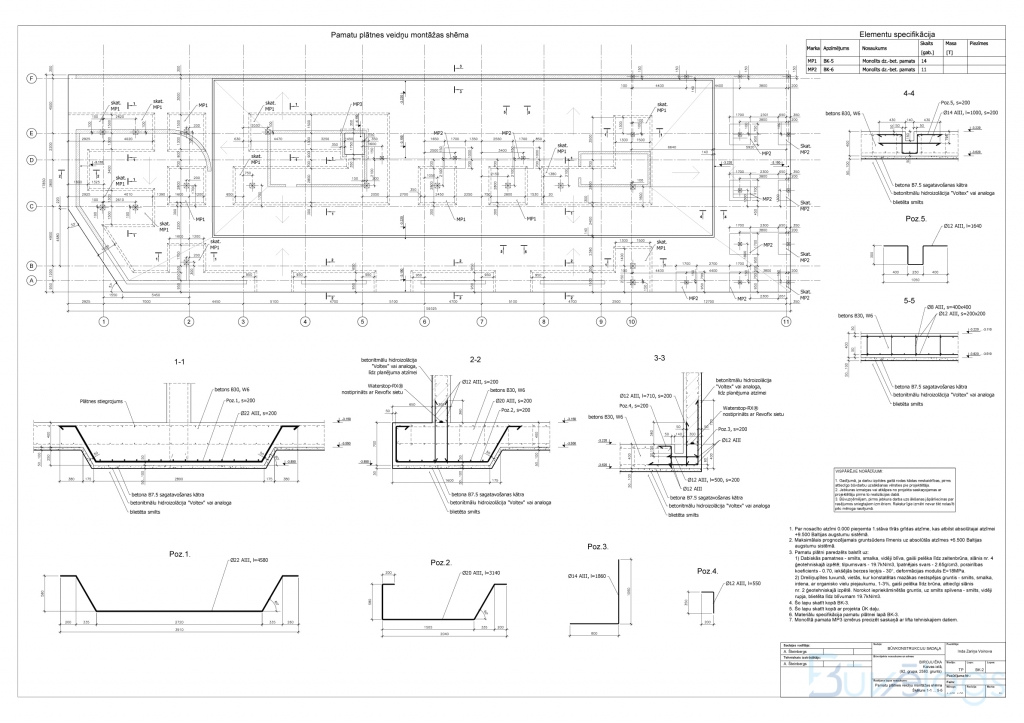
Pamatu plātne.

Platība ~3000 m2.

Arhitektūra un BPV: SIA „J & H”

Gallerija › Ēka ir 5-stāvu ar pazemes stāvu Kaivas ielā