Par projektu

Sporta halle, Talsu ielā 4, Dundagā

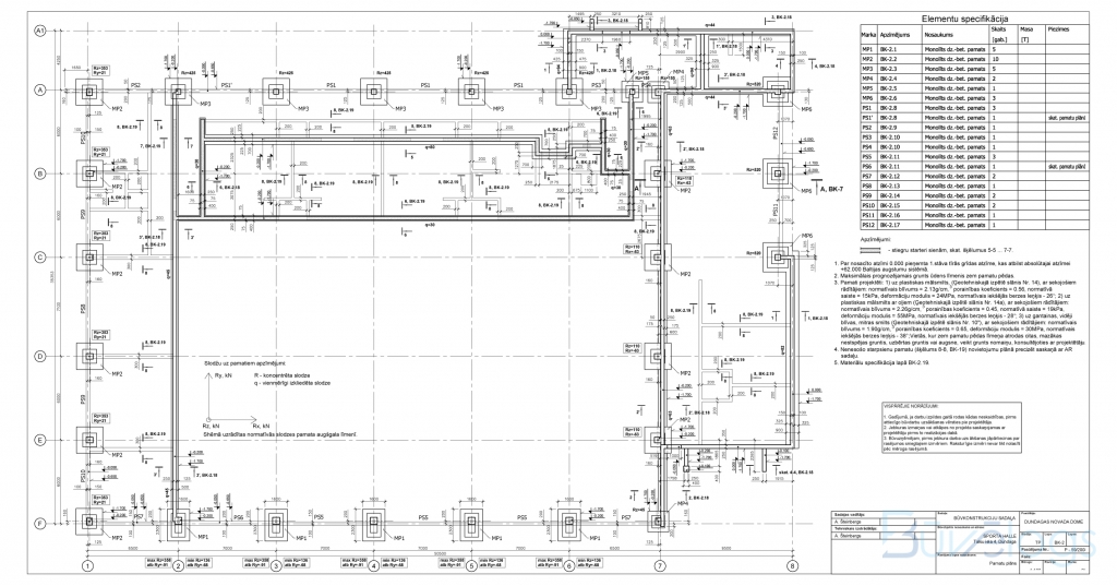
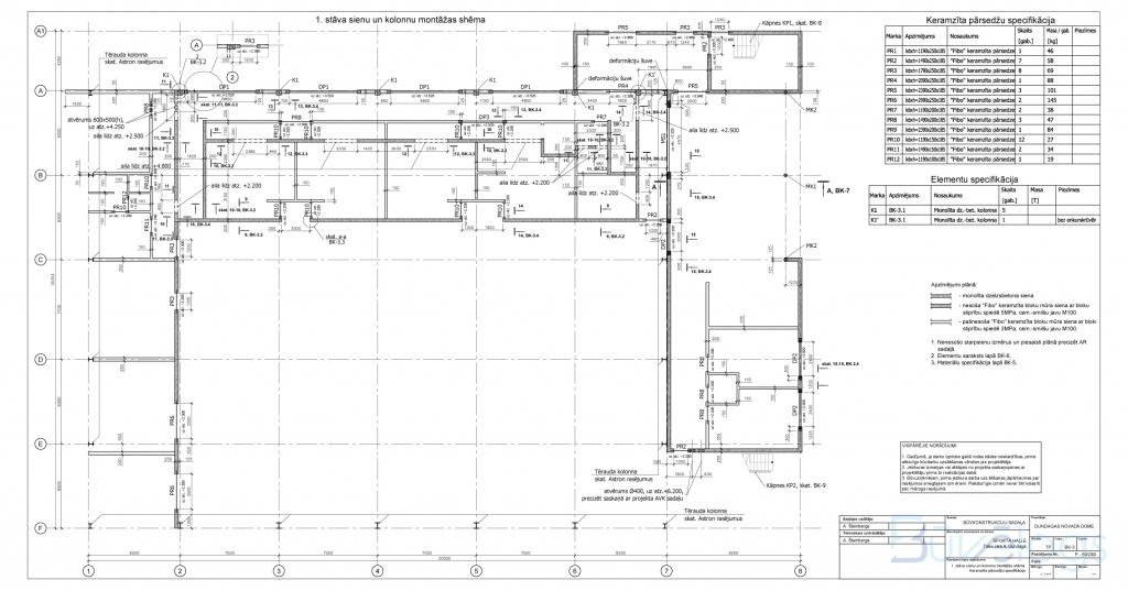
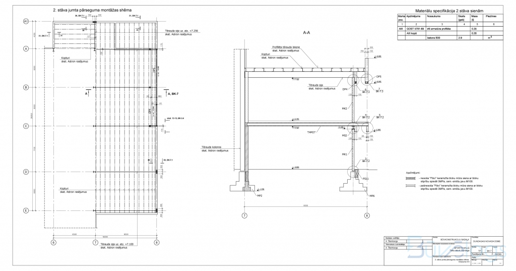
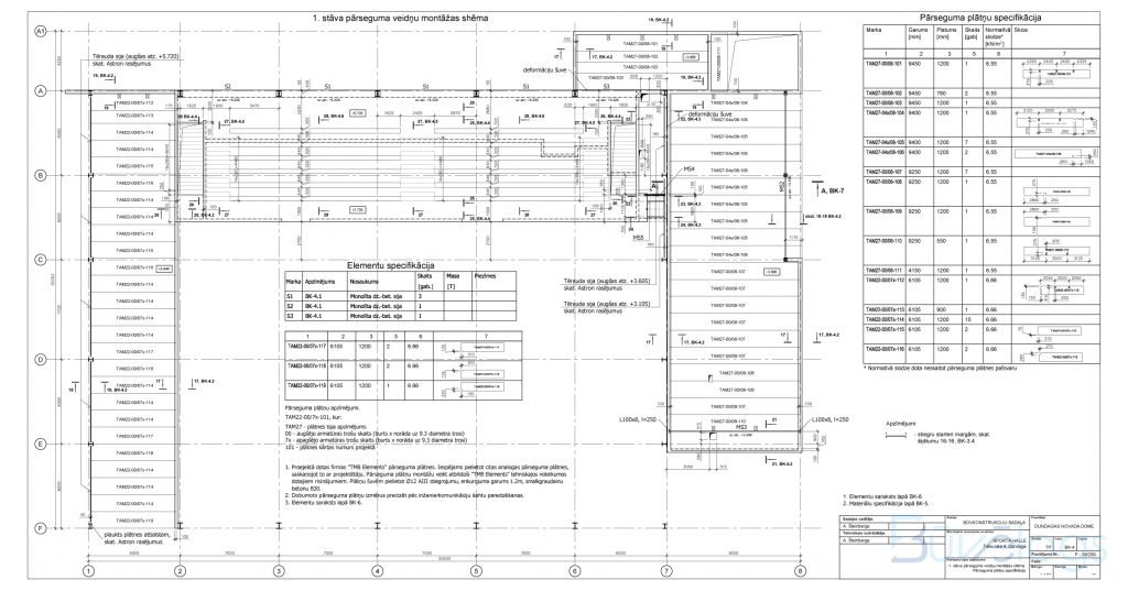
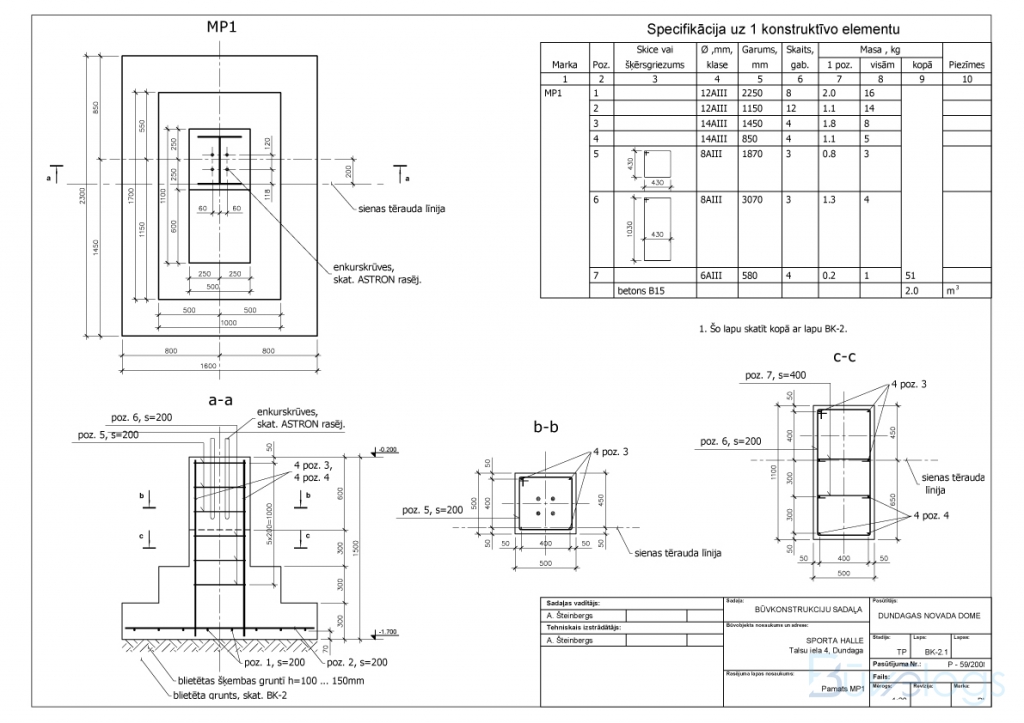
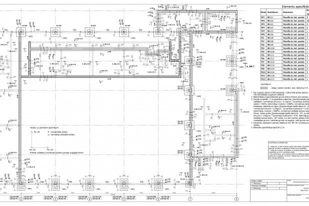
Projekta BK sadaļas ietvaros tika projektēts ēkas nulles cikls, kā arī virszemes daļas dzelzsbetona konstrukcijas.

Tika apstiprināta „Astron” metāla konstrukciju projekta sadaļa.

Arhitektūra un BPV: SIA „Velve-AE”

Gallerija › Sporta halle, Talsu ielā 4, Dundagā