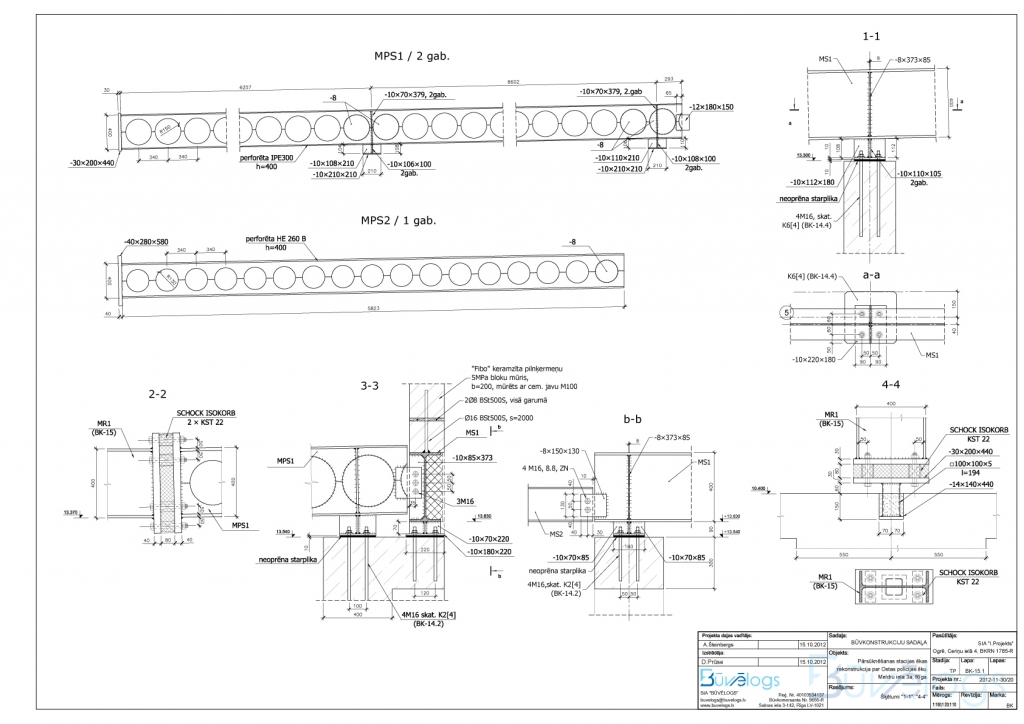
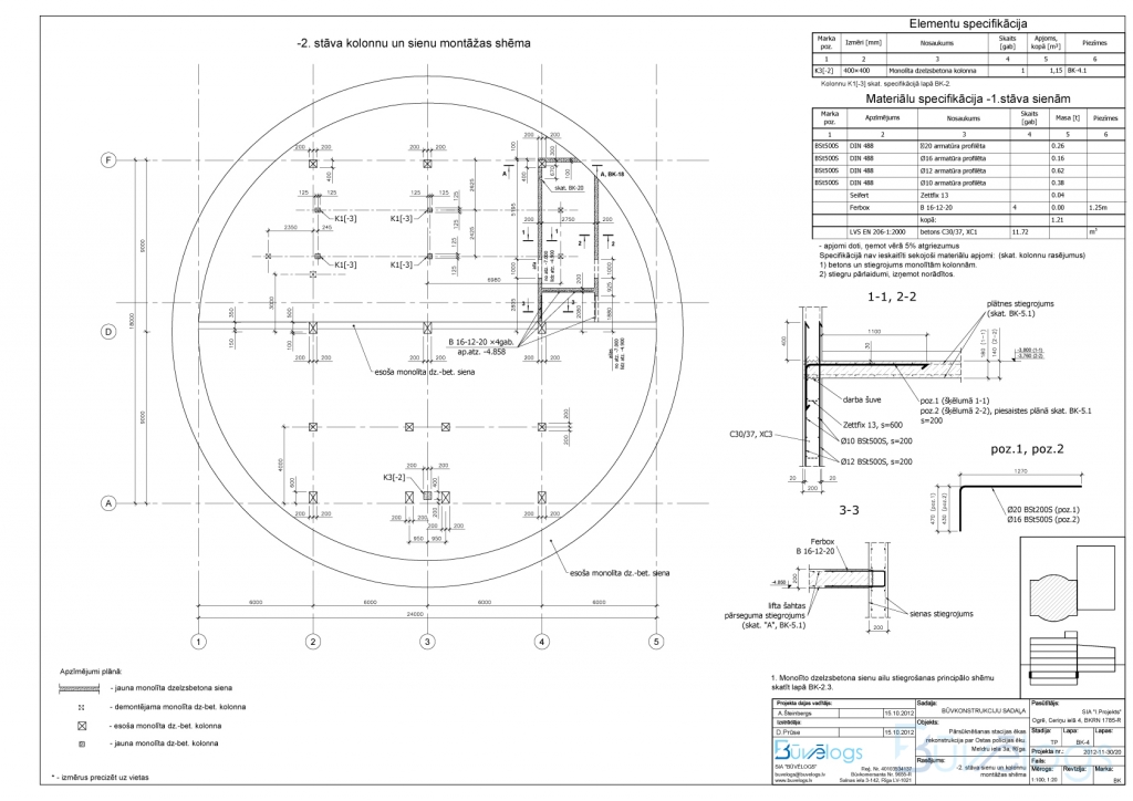
О проекте

Существующее здание бывшее здание насосной станции, в г. Рига, на ул. Мелдру 3а

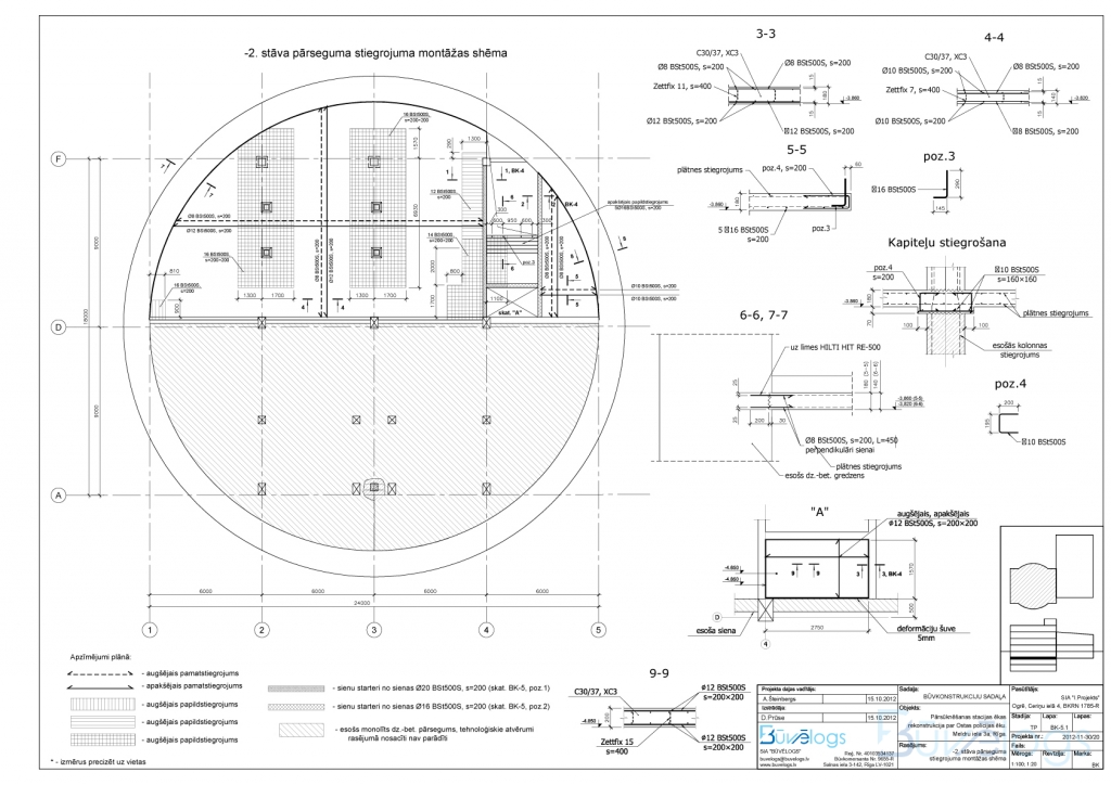
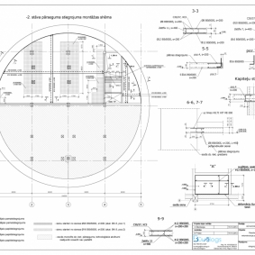
Здание с подвалом, нижняя отметка которого -10,700 м, и на фундаментную плиту воздействует столб воды 10 м высоты.
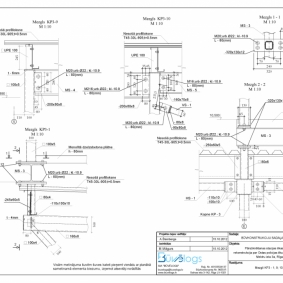
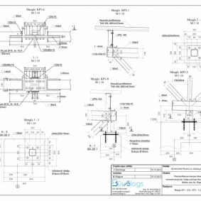
Из 3-х подземных этажей эксплуатируется только верхний, с устройством необходимых дополнительных  элементов – колонн и перекрытий.
К зданию пристроен спортивный зал с подвалом по всей площади здания.

Архитектура и РСП: ООО „ART FUNDUS”

Галерея › Существующее здание бывшее здание насосной станции, в г. Рига, на ул. Мелдру 3а