Par projektu

Darbnīcas ēka ar biroja telpām Planupes iela 29, Inčukalns

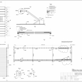
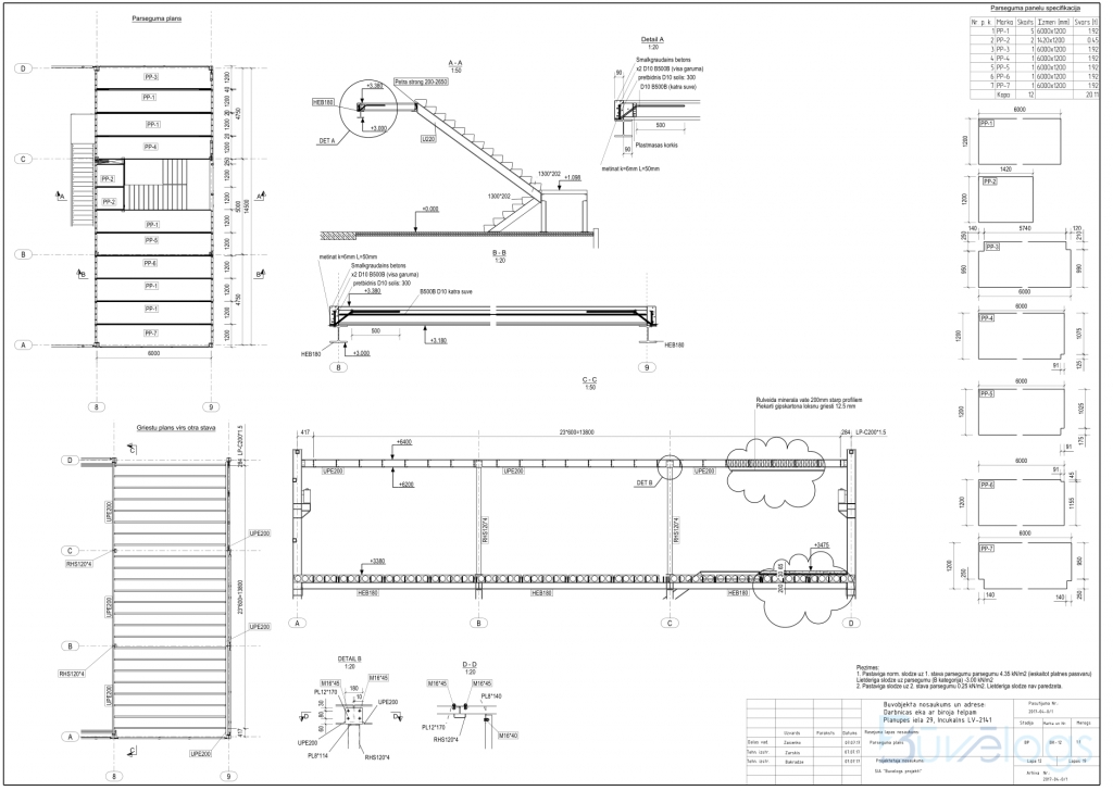
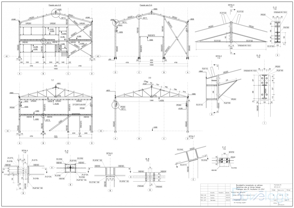
Darbnīcas ēkas ar biroja telpām BK un MKD sadaļas izstrāde. Ēkas telpu kopējā platība ir 772 m2. Tika izvēlēta šāda ēkas konstruktīvā shēma: iespīlētas tubultā T veida profila kolonnas, uz kurām balstās trīsstūra veida kopnes no profilētām caurulēm. Kopņu balstījums uz kolonnām ir lociklveida. Šķērsrāmju solis 6,0 m. Kopņu laidums 14,5 m.  Šķērsrāmja statiskais aprēķins pēc ekspluatējamības robežstāvokļa tika veikts, izmantojot kvazi-pastāvīgo iedarbju kombināciju, t.i. pieņemot, ka palielinātas deformācijas netraucē ēkas atbilstošas ekspluatējamības nodrošināšanu. Deformācijas tiek ierobežotas tikai pēc ārējā izskata kritērijiem. Gala sienu konstrukciju veido velmētas dubultā T veida kolonnas un velmētas dubultā T veida jumta sijas. Sijas balstījums uz kolonnām, kā arī sijas savienojums kores līmenī - pēc aprēķina shēmas stings.Starp asīm 1-2 ir veidota biroja daļa. 1. stāva pārsegums veidots no saliekamā dzelsbetona dobām plātnēm, kuras, savukārt, balstās uz tērauda dubultā T veida sijām. 2. stāva pārsegums veidots no auksti locītiem C veida profiliem un ir paredzēts iekaramo griestu slodžu uzņemšanai. Ražošanas daļā ir paredzēta viensijas tilta celtņa ekspluatācija. Celtņa ceļamspēja 5 t.  Projektēšanas datiem tika izmantota ABUS ELV/ELK viensijas tilta celtņa gabarīti.

Konstrukcijas tika uzmodelētas BIM vidē, izmantojot TEKLA structures programmu. 

Gallerija › Darbnīcas ēka ar biroja telpām Planupes iela 29, Inčukalns